
这套33㎡的只身公寓,业主盼愿增添一个卧室区域欧洲杯体育,将其改酿成微型两居室。

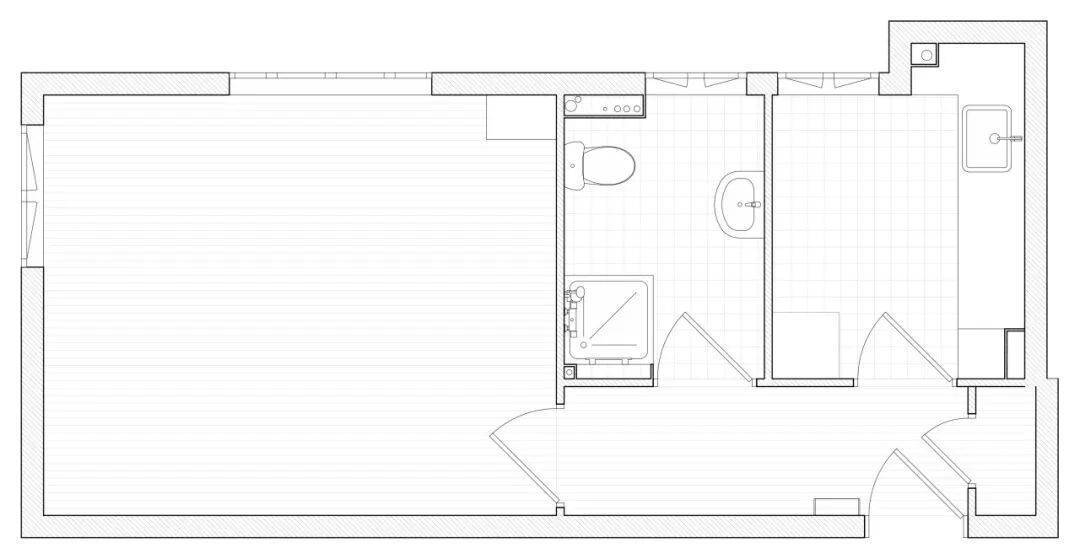
纠正前:公寓地处一条私东谈主弄堂,隔离喧嚣,极为安谧。但其情状颇为破旧,就布局而言,唯独的生涯区域在木质量板上,厨房和浴室通过进口走廊贯串。

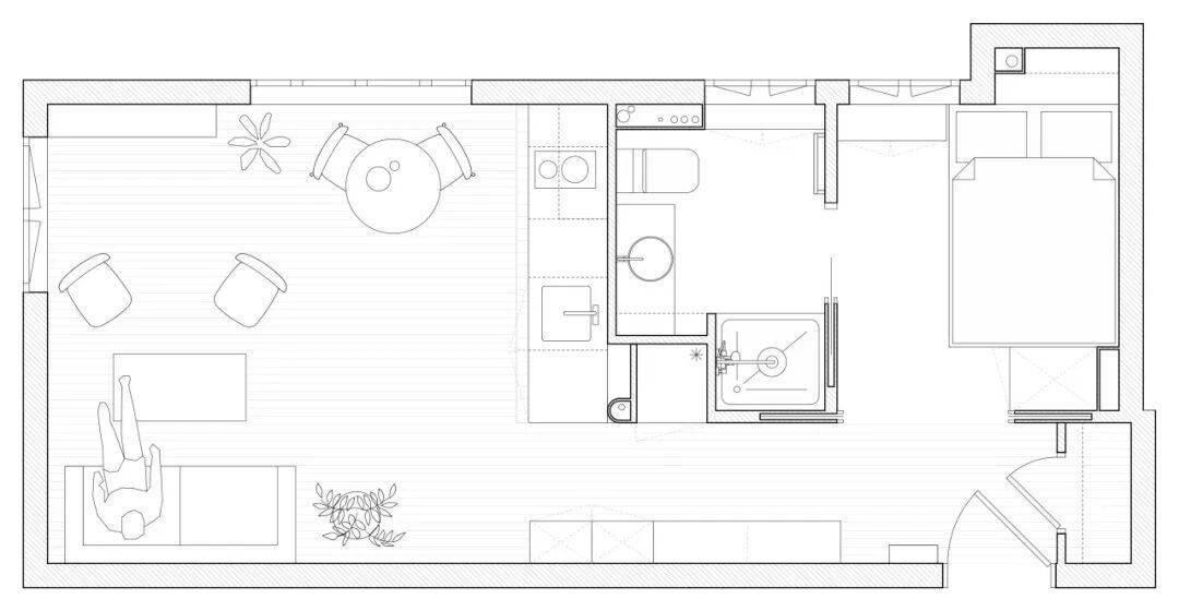
纠正后:将厨房纠正为L型窗户,并将其移至生涯区。随后对进口和浴室进行优化,以普及舒坦度与储物空间。

纠正前:从纠正前的视觉成果可见,进口走廊荟萃着厨房,接着浴室与生涯区域贯串。

纠正后:为了将原始厨房的禁闭空间挑升用于寝息,把这一功能再行融入生涯空间。为减少厨房对客厅的视觉影响,将柱子的线性布局分开,置于通行两侧。

在走廊两侧差别厨房,是极为灵验的从简空间妙技。

保留窗户原有状态,并对大地加以行使——通过打磨贬责及哑光封釉工艺,让地板重焕迷东谈主光彩。为连续历史韵味,诞生师定制了白色烤漆中密度纤维板厨房居品,并在边缘聘请橡木贴皮工艺覆盖。

以白色、淡色木柴为基调,融入陶土色点缀,这种颜色能为空间营造温馨氛围。


因排水管谈位置适度,卫生间被保留在公寓中央区域,且一根立柱位于该空间正中央,对布局蓄意形成制约。

走廊进行全面纠正,通行径线更顺畅,储物功能也获得强化。电路计量表被避讳,定制换鞋长凳,便捷换鞋与收纳鞋子。进口处大型壁柜保留并升级。长凳对面原卫生间进口,改酿成雪柜/冰柜放手区。

本来的厨房被改酿成卧室。该空间仅8已往米,严格来讲只可算寝息角,而非允洽至少9已往米条目的圭臬卧室,但本色使用中,这套公寓彻底可算作两居室居住。

卧室定制储物空间:进口处设步入式衣橱立柜,窗台下打造两个矮柜,原有的旯旮改酿成书架,如今兼作床头配景。

淋浴区聘请10×10厘米瓷砖,与厨房防溅墙图案呼应欧洲杯体育,清翠金色元素如珠宝点缀,为空间注入缜密质感。
#只身公寓 #公寓纠正 #室内蓄意 #空间行使